mardi 2 août 2016

Outil architecte gratuit

Téléchargement gratuit de logiciels architecture pour windows - Retrouvez de nombreux logiciels les plus utiles, sélectionnés par la rédaction de 01net. Kazaplan est un logiciel d'architecture d'intérieur gratuit pour dessiner, décorer et meubler votre maison en 3D. Des outils de conception poussés pour les plus passionnés.

Ce logiciel gratuit de modélisation 3D sort quelque peu de l'ordinaire. Architecture 3D est indispensable afin de mener son projet à terme. Outil permettant de simuler l'ameublement de son logement.


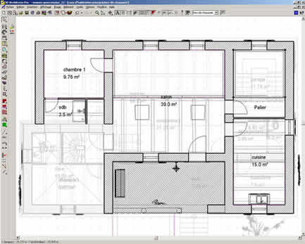
Logiciel gratuit d'architecture pour dessiner des plans.

Tous les outils pour concevoir des plans d'architecture 3D gratuitement, ces logiciels étant effectivement soit libres de droit, soit disponibles dans une version . Outil complet permettant de simplifier le dessin et la conception en 3D. Logiciel d'architecture 3 puissant et gratuit, pour votre maison ou votre appartement. Comme un Architecte est le logiciel gratuit en ligne sur Maison. Comme Un Architecte est le logiciel en ligne qui permet de créer rapidement des plans de maison.


Il a été conçu en partenariat avec un architecte.

Aucun commentaire:

Enregistrer un commentaire

Remarque : Seul un membre de ce blog est autorisé à enregistrer un commentaire.

Articles les plus consultés